Te Huur 4 Kamer Appartement Van Bosseplantsoen In Dordrecht

Dordrecht
Van Bosseplantsoen
€ 845,-
G/W/L
Exclusief G/W/L
Soort woning
Appartement
Oplevering
Kaal
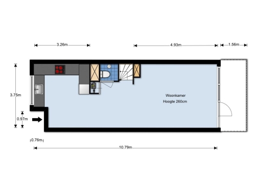
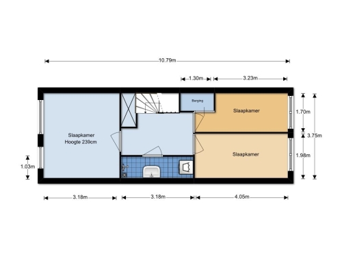
Woonoppervlakte
80m²
Aantal kamers
4
Aantal slaapkamers
3
Beschikbaar per
30-3-2026
Bezichtiging vanaf
27-3-2026
Selectiedatum
25-3-2026
Gecontroleerd op: 26-Feb-2026
Schrijf je in om te reageren
Bemiddelingskosten
Nee
Object
Direct bij de eigenaar
Borg
845
Garantiestelling
Niet mogelijk
Huurtoeslag
Mogelijk
Inkomen eis
N.V.T.
Huurtermijn
Onbepaalde termijn
Oplevering
Kaal