Te Huur 4 Kamer Appartement Telderslaan In Utrecht

Utrecht
Telderslaan
€ 1120,-
G/W/L
Exclusief G/W/L
Soort woning
Appartement
Oplevering
Kaal
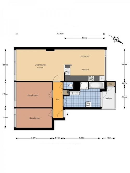
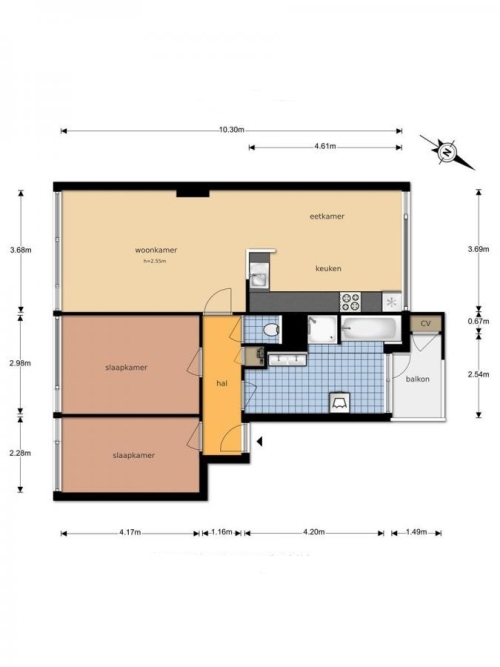
Woonoppervlakte
80m²
Aantal kamers
4
Aantal slaapkamers
3
Beschikbaar per
1-11-2025
Bezichtiging vanaf
29-10-2025
Selectiedatum
27-10-2025
Gecontroleerd op: 12-Oct-2025
Schrijf je in om te reageren
Bemiddelingskosten
Nee
Object
Direct bij de eigenaar
Borg
1120
Garantiestelling
Mogelijk
Huurtoeslag
Niet mogelijk
Inkomen eis
3,2 X Maandhuur Bruto
Huurtermijn
Onbepaalde termijn
Oplevering
Kaal