Te Huur 4 Kamer Appartement Koppele In Eindhoven

Eindhoven
Koppele
€ 1070,-
G/W/L
Exclusief G/W/L
Soort woning
Appartement
Oplevering
Kaal
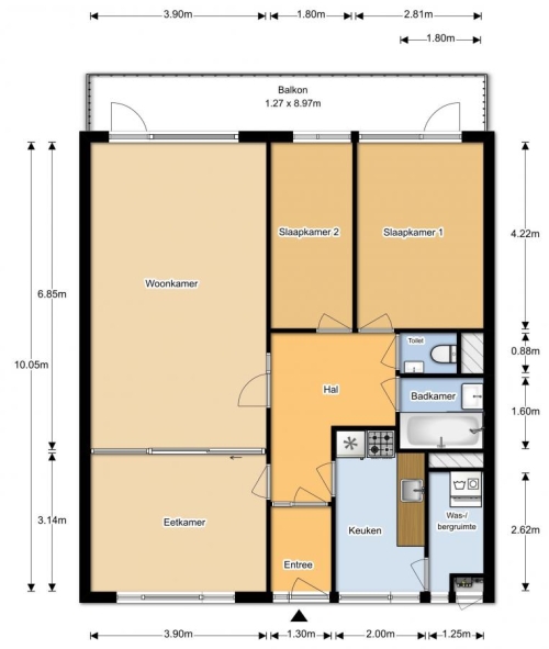
Woonoppervlakte
87m²
Aantal kamers
4
Aantal slaapkamers
3
Beschikbaar per
12-5-2026
Bezichtiging vanaf
7-5-2026
Selectiedatum
5-5-2026
Gecontroleerd op: 15-Apr-2026
Schrijf je in om te reageren
Object
Direct bij de eigenaar
Oplevering
Kaal
Omschrijving

Object: Direct bij de eigenaar
Huurtermijn: Onbepaalde termijn
Oplevering: Zie foto
Inkomen eis: 2,6 x Bruto huur
Garantiestelling mogelijk: Ja
Borg: 1 Maand
Bemiddeling kosten: Nee
Woningdelers toegestaan: Ja
Huisdieren toegestaan: Afhankelijk van de Eigenaar
Huurtoeslag grens: Nee
Geschikt voor studenten: Afhankelijk van de Eigenaar