Te Huur 4 Kamer Appartement Anjelierstraat In Den Haag

Den Haag
Anjelierstraat
€ 1037,-
G/W/L
Exclusief G/W/L
Soort woning
Appartement
Oplevering
Kaal
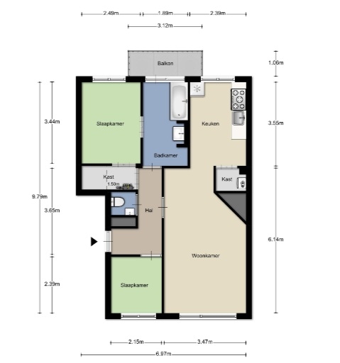
Woonoppervlakte
60m²
Aantal kamers
4
Aantal slaapkamers
3
Beschikbaar per
26-5-2026
Bezichtiging vanaf
21-5-2026
Selectiedatum
19-5-2026
Gecontroleerd op: 21-Apr-2026
Schrijf je in om te reageren
Bemiddelingskosten
Nee
Object
Direct bij de eigenaar
Borg
1037
Garantiestelling
Mogelijk
Huurtoeslag
Niet mogelijk
Inkomen eis
3,1 X Maandhuur Bruto
Huurtermijn
Onbepaalde termijn
Oplevering
Kaal