Te Huur 3 Kamer Appartement William Boothlaan In Amstelveen

Amstelveen
William Boothlaan
€ 1050,-
G/W/L
Exclusief G/W/L
Soort woning
Appartement
Oplevering
Kaal
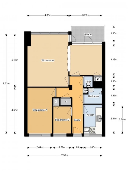
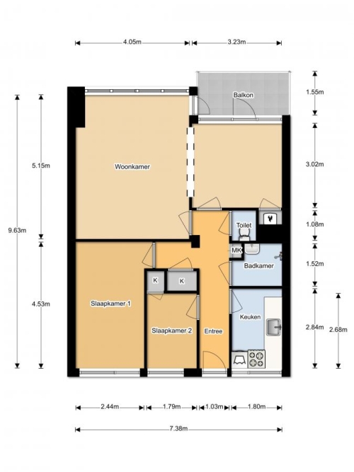
Woonoppervlakte
68m²
Aantal kamers
3
Aantal slaapkamers
2
Beschikbaar per
9-6-2026
Bezichtiging vanaf
4-6-2026
Selectiedatum
2-6-2026
Gecontroleerd op: 26-May-2026
Schrijf je in om te reageren
Object
Direct bij de eigenaar
Oplevering
Kaal
Omschrijving

Object: Direct bij de eigenaar
Huurtermijn: Onbepaalde termijn
Oplevering: Zie foto
Inkomen eis: 3,1 x Bruto huur
Garantiestelling mogelijk: Ja
Borg: 1 Maand
Bemiddeling kosten: Nee
Woningdelers toegestaan: Ja
Huisdieren toegestaan: Afhankelijk van de Eigenaar
Huurtoeslag grens: Nee
Geschikt voor studenten: Afhankelijk van de Eigenaar