Te Huur 3 Kamer Appartement Paulus Borstraat In Amersfoort

Amersfoort
Paulus Borstraat
€ 1045,-
G/W/L
Exclusief G/W/L
Soort woning
Appartement
Oplevering
Kaal
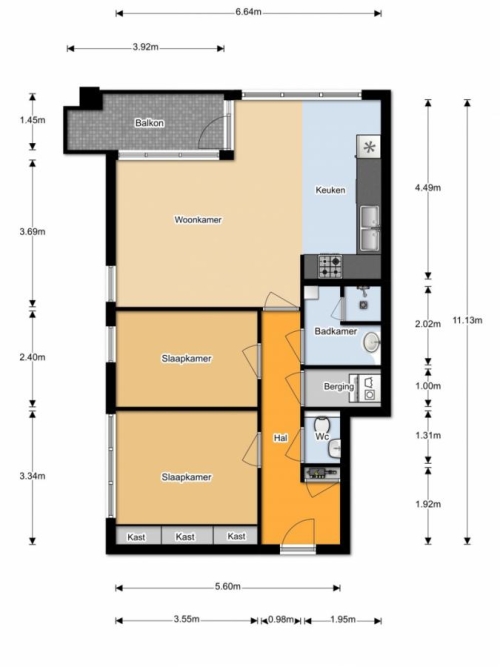
Woonoppervlakte
66m²
Aantal kamers
3
Aantal slaapkamers
2
Beschikbaar per
27-5-2026
Bezichtiging vanaf
22-5-2026
Selectiedatum
20-5-2026
Gecontroleerd op: 21-Apr-2026
Schrijf je in om te reageren
Bemiddelingskosten
Nee
Object
Direct bij de eigenaar
Borg
1045
Garantiestelling
Mogelijk
Huurtoeslag
Niet mogelijk
Inkomen eis
3,0 X Maandhuur Bruto
Huurtermijn
Onbepaalde termijn
Oplevering
Kaal