Te Huur 3 Kamer Appartement Geessinkweg In Enschede

Enschede
Geessinkweg
€ 820,-
G/W/L
Exclusief G/W/L
Soort woning
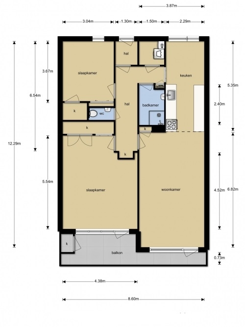
Appartement
Oplevering
Kaal
Woonoppervlakte
96m²
Aantal kamers
3
Aantal slaapkamers
2
Beschikbaar per
1-11-2025
Bezichtiging vanaf
29-10-2025
Selectiedatum
27-10-2025
Gecontroleerd op: 09-Oct-2025
Schrijf je in om te reageren
Bemiddelingskosten
Nee
Object
Direct bij de eigenaar
Borg
820
Garantiestelling
Mogelijk
Huurtoeslag
Niet mogelijk
Inkomen eis
3,0 X Maandhuur Bruto
Huurtermijn
Onbepaalde termijn
Oplevering
Kaal