Te Huur 2 Kamer Appartement Van Ostadelaan In Alkmaar

Alkmaar
Van Ostadelaan
€ 845,-
G/W/L
Exclusief G/W/L
Soort woning
Appartement
Oplevering
Kaal
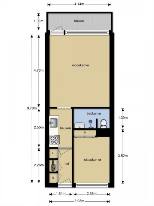
Woonoppervlakte
38m²
Aantal kamers
2
Aantal slaapkamers
1
Beschikbaar per
11-6-2026
Bezichtiging vanaf
6-6-2026
Selectiedatum
4-6-2026
Gecontroleerd op: 30-May-2026
Schrijf je in om te reageren
Object
Direct bij de eigenaar
Oplevering
Kaal
Omschrijving

Object: Direct bij de eigenaar
Huurtermijn: Onbepaalde termijn
Oplevering: Zie foto
Inkomen eis: Nee
Garantiestelling mogelijk: Nee
Borg: 1 Maand
Bemiddeling kosten: Nee
Woningdelers toegestaan: Nee
Huisdieren toegestaan: Afhankelijk van de Eigenaar
Huurtoeslag grens: Ja
Geschikt voor studenten: Afhankelijk van de Eigenaar