Te Huur 2 Kamer Appartement Van Leeuwenhoekstraat In Haarlem

Haarlem
Van Leeuwenhoekstraat
€ 850,-
G/W/L
Exclusief G/W/L
Soort woning
Appartement
Oplevering
Kaal
Woonoppervlakte
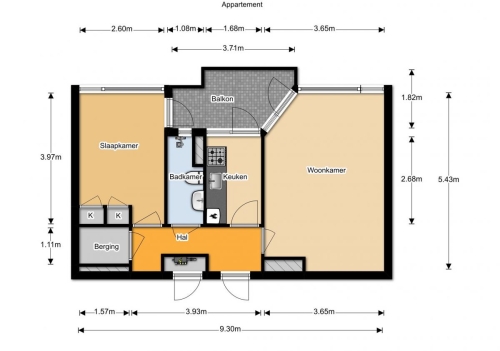
45m²
Aantal kamers
2
Aantal slaapkamers
1
Beschikbaar per
14-4-2026
Bezichtiging vanaf
9-4-2026
Selectiedatum
7-4-2026
Gecontroleerd op: 15-Apr-2026
Schrijf je in om te reageren
Object
Direct bij de eigenaar
Oplevering
Kaal
Omschrijving

Object: Direct bij de eigenaar
Huurtermijn: Onbepaalde termijn
Oplevering: Zie foto
Inkomen eis: Nee
Garantiestelling mogelijk: Nee
Borg: 1 Maand
Bemiddeling kosten: Nee
Woningdelers toegestaan: Nee
Huisdieren toegestaan: Afhankelijk van de Eigenaar
Huurtoeslag grens: Ja
Geschikt voor studenten: Afhankelijk van de Eigenaar