Te Huur 2 Kamer Appartement Tolhuis In Nijmegen

Nijmegen
Tolhuis
€ 870,-
G/W/L
Exclusief G/W/L
Soort woning
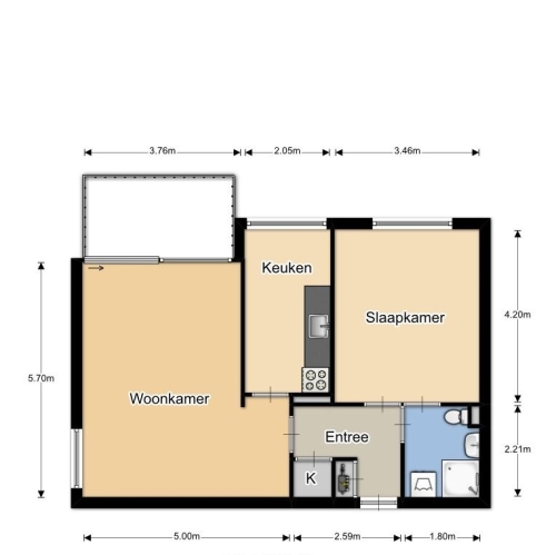
Appartement
Oplevering
Kaal
Woonoppervlakte
57m²
Aantal kamers
2
Aantal slaapkamers
1
Beschikbaar per
30-3-2026
Bezichtiging vanaf
26-3-2026
Selectiedatum
24-3-2026
Gecontroleerd op: 26-Feb-2026
Schrijf je in om te reageren
Bemiddelingskosten
Nee
Object
Direct bij de eigenaar
Borg
870
Garantiestelling
Niet mogelijk
Huurtoeslag
Mogelijk
Inkomen eis
N.V.T.
Huurtermijn
Onbepaalde termijn
Oplevering
Kaal