Te Huur 2 Kamer Appartement Bomanshof In Eindhoven

Eindhoven
Bomanshof
€ 980,-
G/W/L
Exclusief G/W/L
Soort woning
Appartement
Oplevering
Kaal
Woonoppervlakte
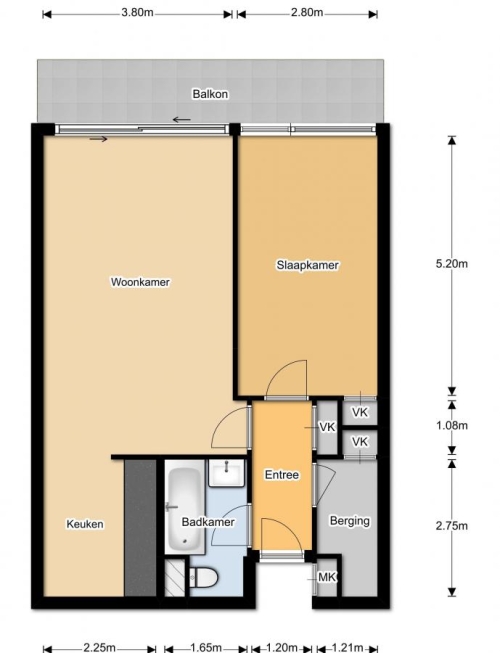
52m²
Aantal kamers
2
Aantal slaapkamers
1
Beschikbaar per
9-6-2026
Bezichtiging vanaf
4-6-2026
Selectiedatum
2-6-2026
Gecontroleerd op: 30-May-2026
Schrijf je in om te reageren
Object
Direct bij de eigenaar
Oplevering
Kaal
Omschrijving

Object: Direct bij de eigenaar
Huurtermijn: Onbepaalde termijn
Oplevering: Zie foto
Inkomen eis: 2,7 x Bruto huur
Garantiestelling mogelijk: Ja
Borg: 1 Maand
Bemiddeling kosten: Nee
Woningdelers toegestaan: Ja
Huisdieren toegestaan: Afhankelijk van de Eigenaar
Huurtoeslag grens: Nee
Geschikt voor studenten: Afhankelijk van de Eigenaar